Ventilation Requirements (all kW net)
O/F Boiler 20kW
DFE 10kW
LFE 7kW
Cooker 14kW, 15m3 room, opening window
Boiler = 20 x 5 = 100
DFE = 100
LFE = 7 x 5 = 35
Cooker = 0
Answer = 235cm2 free area
Can this ventilator with a flyscreen be used with gas?

No - catches lint and can be blocked + the picture also shows a hit and miss vent
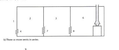
If 4 = 100cm2 what do 7 and 8 need to be?

7 and 8 need to be 50% bigger than 4 i.e. 150cm2
If you have multiple F/L appliances in a room how much additional ventilation would you require?
Simply add up all their heat inputs and consult the table in BS4440-2000 Part II ‘Ventilation for Flueless Appliances’
Building regulations state that all flueless appliances must have:
a) No window (or equivalent) or ventilation, if required, to an internal room
b) Window (or equivalent) and, if required, vent to outside
c) Window (or equivalent) and, if required, vent to internal room
b) Window (or equivalent) and, if required, vent to outside
Ventilation Requirements
DFE 10kW net plus
LFE 4.5kW net
DFE = 100cm2
LFE = 4.5kW x 5cm2 = 22.5cm2
Total free area required = 122.5cm2
Remember fixed vent requirement take the adventitious
What is adventitious ventilation and how much can you assume it is?
1) Air that enters via cracks around door fames etc.
2) 35 cm2
Compartment vents – 4 key reminders when installing
1) Internal vents, same room, external, same wall
2) Range rated – use max kW
3) Two or more flued appliances – add them all up
4) Ducting – separate for top/bottom
Compartment ventilation
What are the 4 things to remember?
1 Vents can be direct to outside air or to inside space
2 They must communicate to the same space
3 Two vents are required, one at high and one at low level
4 DO NOT deduct 7kW from appliance max. input before calculating
compartment vent sizes - use max. heat input
Ventilation Requirements
O/F boiler 20kW net plus
O/F fire 5.5kW net
20kW + 5.5kW = 25.5kW – 7kW = 18.5kW x 5cm2 = 92.5cm2 free area
Both O/F, both space heaters, add then together
A data plate does not indicate whether the kW is gross or net. When doing a ventilation calculation which one do you assume it is?
Net - gives you a bigger vent requirement
Unless you are sure that the appliance is pre 2000 then you assume it is gross (gross / 1.1 = net)
If vent 4 = 100cm2 what does vent 5 need to be?

The same - 100cm2
What are the two key reason for compartment ventilation?
1) For O/F appliances - combustion & cooling
2) For R/S appliances - cooling
Compartment Ventilation
What sized vents are required on the outer wall?

Top - 5cm2/kW
Bottom - 5cm2/kW
By rule of thumb what is the difference between a room and a compartment?
A compartment is 3
Compartment Ventilation
What sized vents are required on the outside wall?

5cm2/kW top
10cm2/kW bottom
The ventilation requirement for a domestic oven, in a room 5 to 10m3, is 50cm2.
If the room has a door and a window to the outside what is the new ventilation requirement?
None
When doing a vent calculation do you use gross or net kW?
Net
You have a type B appliance of 27 kW how much ventilation is required?
27kW – 7kW (adventitious air) = 20kW x 5cm2 = 100cm2
Ventilation Requirements

10m2 room with opening window and door to inside room
Cooker and DFE in room
Cooker = 50cm2
DFE = 100cm2
Answer = 100cm2
Take the largest of the two since a cooker is involved
Three Vents in series
What size to vents 2 and 3 need to be relative to 1?

50% more free area

If 4 = 100cm2 what do 7 and 8 need to be?
Assuming it is an O/F boiler in the compartment what size per kW do these vents need to be?

7 and 8 need to be 50% bigger than 4 i.e. 150cm2
Compartment
Top vent 10cm2/kW
Bottom vent 20cm2/kW
Compartments - can you use adventitious air in the ventilation calculations?
No
For a terracotta air brick do you measure A or B to calculate the free area for ventilation?

A - the smallest side