Lesson 8 Flashcards

Steel Erection Drawings (21 cards)

1
Q

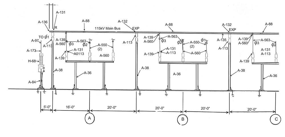
The aluminum tube bus conductor used in the switching station is ____ diameter-schedule 40, seamless.

a. 2”
b. 4”
c. 5”
d. 6”

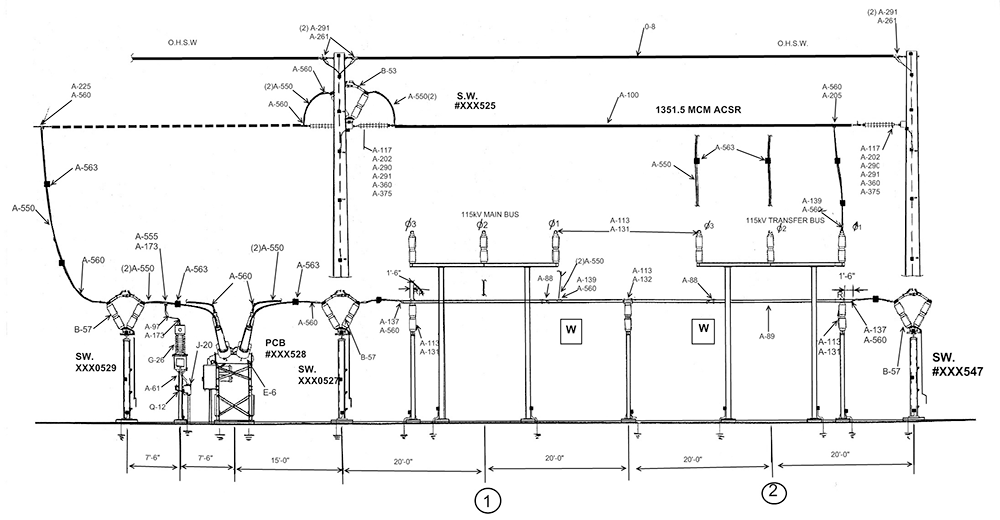
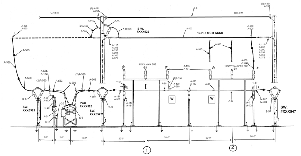
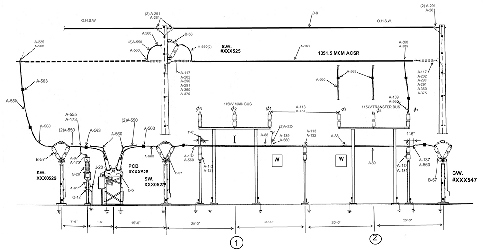
Reference: Steel Erection Drawings, “Material Lists,” Materials Chart, Unit A-89

A

b. 4”

How well did you know this?
1
Not at all
2
3
4
5
Perfectly
2
Q

There are three 115-kilovolt, 3-phase coupling capacitor voltage transformer support structures included in the material list. These units are designated as ____.

a. A-36
b. A-61
c. A-84
d. A-100

Reference: Steel Erection Drawings, “Material Lists,” Materials Chart, Unit A-61

A

b. A-61

How well did you know this?
1
Not at all
2
3
4
5
Perfectly
3
Q

The vibration dampers will be installed on the ____ conductors.

a. 4” tubular bus
b. AAC 350 MCM bus
c. ACSR 336 MCM exit
d. ACSR 1351.5 MCM bus

Reference: Steel Erection Drawings, “Material Lists,” Materials Chart, Unit A-88

A

a. 4” tubular bus

How well did you know this?
1
Not at all
2
3
4
5
Perfectly
4
Q

This switching station will require eight 115-kilovolt, 3-phase bus support structures measuring ____ tall.

a. 11’ 10 ½”
b. 16’ 6”
c. 21’
d. 23’ 4”

Reference: Steel Erection Drawings, “Material Lists,” Materials Chart, Unit A-36

A

c. 21’

How well did you know this?
1
Not at all
2
3
4
5
Perfectly
5
Q

The 115-kilovolt B-57 side break disconnect switches are mounted on the ____ structures.

a. A-36
b. A-61
c. A-74
d. A-84

Reference: Steel Erection Drawings, “Material Lists,” Materials Chart, Unit A-36

A

a. A-36

How well did you know this?
1
Not at all
2
3
4
5
Perfectly
6
Q

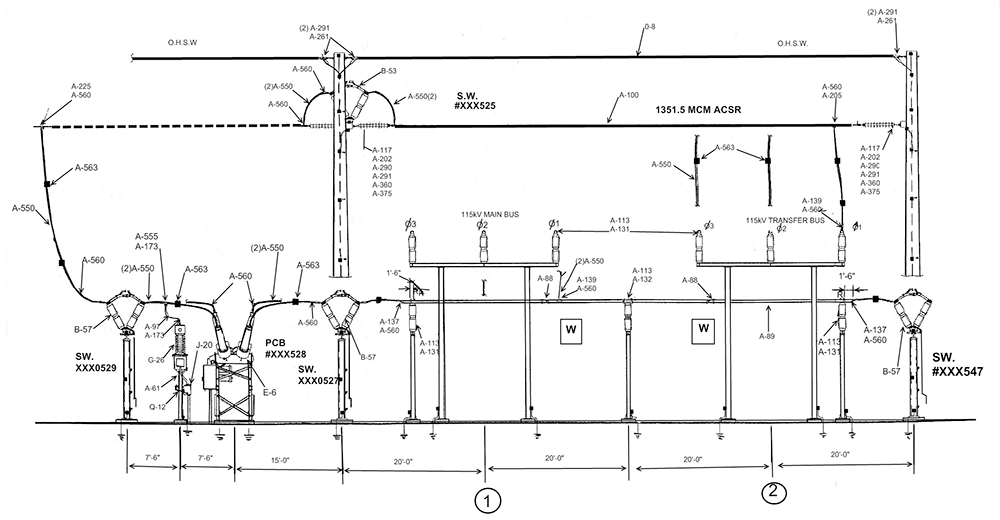
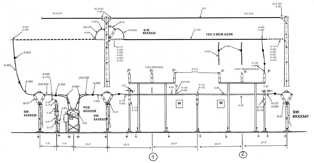
The distance from the Portales, Springer, and Santa Rosa 115-kilovolt circuits is ____ from center to center.

a. 25’
b. 30’
c. 35’
d. 40’

Reference: Steel Erection Drawings, “Careful Comparison,” Paragraph 1, Figure 1

A

d. 40’

How well did you know this?
1
Not at all
2
3
4
5
Perfectly
7
Q

The center line of the A-61 coupling capacitor voltage transformer support structure is ____ from the center line of the power circuit breaker (PCB) support structure.

a. 7’ 6”
b. 12’
c. 15’
d. 20’

Reference: Steel Erection Drawings, “Careful Comparison,” Paragraph 1, Figure 2

A

a. 7’ 6”

How well did you know this?
1
Not at all
2
3
4
5
Perfectly
8
Q

The S4600 115-kilovolt bus support is to be assembled with the component numbered ____ in the horizontal position.

a. 4601
b. 4602
c. A-36
d. A-38

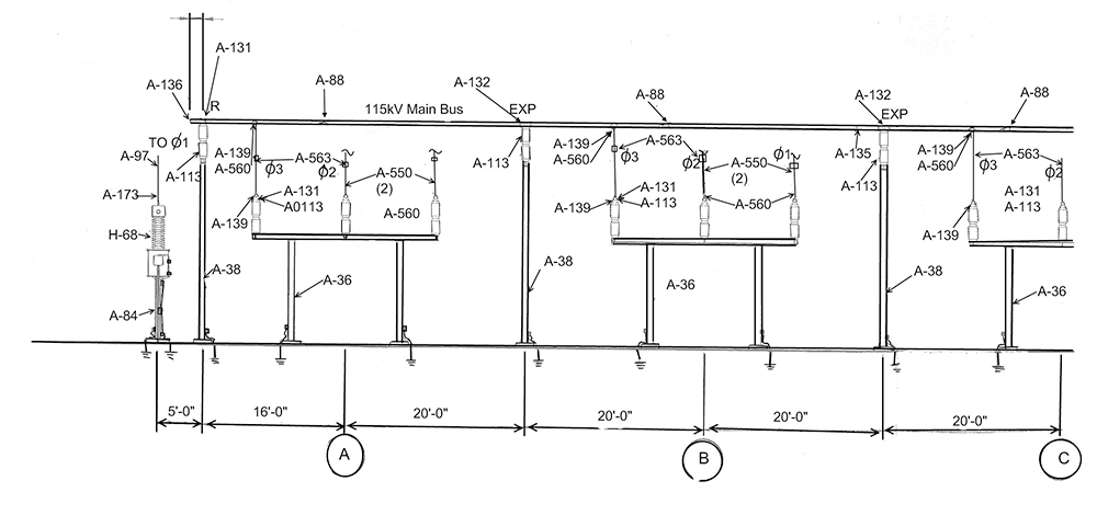
Reference: Steel Erection Drawings, “Careful Comparison,” Paragraph 2, Figure 3

A

b. 4602

How well did you know this?
1
Not at all
2
3
4
5
Perfectly
9
Q

There are nine B-57 Line Side Disconnect Switches located between the ____ and ____.

a. exit circuits / power circuit breakers
b. main bus / transfer bus
c. power circuit breakers / main bus
d. transfer bus / power circuit breakers

Reference: Steel Erection Drawings, “Careful Comparison,” Paragraph 1, Figure 2

A

a. exit circuits / power circuit breakers

How well did you know this?
1
Not at all
2
3
4
5
Perfectly
10
Q

If a Qualified Electrical Worker is stringing 200 feet of 1351.5 MCM ACSR string bus conductors in the switching station, the wire roll should weigh ____ in order to have enough wire to do the job.

a. 247 lbs
b. 297 lbs
c. 327 lbs
d. 347 lbs

Reference: Steel Erection Drawings, “Material Lists,” Materials Chart, Unit A-100

A

d. 347 lbs

How well did you know this?
1
Not at all
2
3
4
5
Perfectly
11
Q

The tubular bus work is attached to the A-113 station post insulators with ____ bus supports.

a. A-100 and A-117
b. A-131 and A-132
c. A-135 and A-136
d. A-154 and A-155

Reference: Steel Erection Drawings, “Careful Comparison,” Paragraph 3, Figure 4

A

b. A-131 and A-132

How well did you know this?
1
Not at all
2
3
4
5
Perfectly
12
Q

The conductor from the top of the switches to the bus is ____ MCM AAC.

a. 336
b. 550
c. 750
d. 1033.5

Reference: Steel Erection Drawings, “Careful Comparison,” Paragraph 1, Figure 2

A

d. 1033.5

How well did you know this?
1
Not at all
2
3
4
5
Perfectly
13
Q

In the diagram, G26 is the designation given for the ____.

a. composite suspension insulators
b. coupling capacitor voltage transformer
c. grounding studs for tubular bus
d. station post insulators

Reference: Steel Erection Drawings, “Careful Comparison,” Paragraph 1, Figure 2

A

b. coupling capacitor voltage transformer

How well did you know this?
1
Not at all
2
3
4
5
Perfectly
14
Q

The diagram shows two structures where the overhead shield wire is dead-ended. These structures have a horizontal separation of ____.

a. 60’
b. 80’
c. 100’
d. 120’

Reference: Steel Erection Drawings, “Careful Comparison,” Paragraph 1, Figure 2

A

b. 80’

How well did you know this?
1
Not at all
2
3
4
5
Perfectly
15
Q

The assembled S4600 bus support structure weighs ____.

a. 670 lbs
b. 780 lbs
c. 890 lbs
d. 980 lbs

Reference: Steel Erection Drawings, “Careful Comparison,” Paragraph 4, Sentence 4

A

c. 890 lbs

How well did you know this?
1
Not at all
2
3
4
5
Perfectly
16
Q

The project will require 1,100 feet of tubular bus conductor. To complete the job, there must be ____ sections on site.

a. 22
b. 28
c. 37
d. 55

Reference: Steel Erection Drawings, “Material Lists,” Materials Chart, Unit A-89

17
Q

The post station insulators that will hold up the bus work are labeled A-113. There are ____ insulators required to complete the job.

a. 25
b. 35
c. 45
d. 55

Reference: Steel Erection Drawings, “Material Lists,” Materials Chart, Unit A-13

18
Q

The 115-kilovolt main bus is attached to insulators mounted on the ____ support structures.

a. A-36
b. A-38
c. A-89
d. A-113

Reference: Steel Erection Drawings, “Careful Comparison,” Paragraph 3, Figure 4

19
Q

The horizontal phase to phase separation at the tubular bus-work is ____ throughout the switchyard.

a. 10’
b. 12’
c. 15’
d. 18’

Reference: Steel Erection Drawings, “Careful Comparison,” Paragraph 2, Figure 3

20
Q

When gathering pieces of a lattice steel structure, each member will have a number stamped on it. These numbers are manufactures’ numbers and do not correspond with the drawings.

True or False?

Substation Construction Guidelines Textbook, Chap. 6, Pg. 164, “Assembly,” Paragraph 1, Sentence 3

21
Q

The drawings for steel structure members show if they have the flat side up or the sharp side up.

True or False?

Substation Construction Guidelines Textbook, Chap. 6, Pg. 164, “Assembly,” Paragraph 1, Last Sentence